Skip To Content

5830 Liberty Highway

Pendleton, SC 29670
  • $795,000
  • STATUS: Active
  • ON SITE: 90 Days
  • ID#: 20291012
$795,000
  • 4
    BEDS
  • 1.98
    ACRES
  • 3
    BATHS
  • 0
    1/2 BATHS
Neighborhood:
Type:
Single-Family Home
Built:
2025
County:

School Information

Elementary School:
Middle School:
High School:

Description

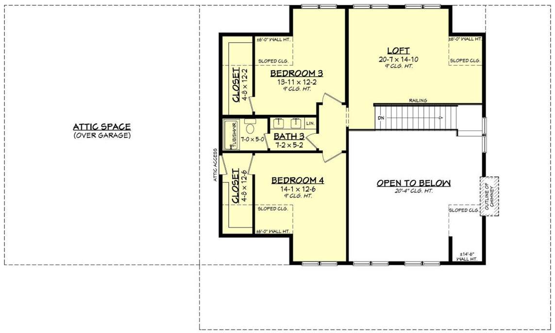
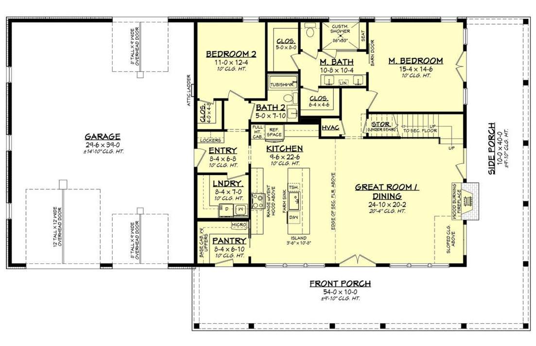
The previous buyers loss is your gain! Home had been under a contingency contract. The previous buyers have not been able to satisfy that contingency. This is great news for you! This home is complete accept for a few finishing touches. Looking for a home that blends modern farmhouse charm with timeless elegance, all set on just under 2 acres? Look no more! Construction is under way on this stunning 4-bedroom, 3-bath barndominium-style home offers nearly 2,800 sq. ft. of beautifully designed living space across two stories, packed with high-end finishes and thoughtful upgrades throughout. The first floor showcases 8' interior doors, solid wood and glass double front doors, a striking custom wood-and-black metal staircase, and an open-concept layout with luxury laminate flooring, quartz countertops, a gas log fireplace, and soaring ceilings. Here you'll find the chef's kitchen, living room, owner's suite, mudroom, laundry room, an additional bedroom, and a full bath. The kitchen is a culinary dream, featuring a 36" stainless steel dual-fuel range, farmhouse sink, stainless refrigerator, dishwasher, and microwave. Built for both comfort and efficiency, this home includes tankless gas hot water, open-cell foam insulation (even in the garage/workshop), and three separate HVAC systemsone for each floor plus one for the garage. A whole-house generator adds peace of mind. One of the property's most impressive features is the 1,150+ sq. ft. heated and cooled garage/workshopideal for hobbyists, business owners, or additional storage. Outside, the home is equally impressive with a stone foundation, cement board siding on the house, metal siding on the garage, and a durable metal roof. This one-of-a-kind property offers the perfect balance of rustic style and modern comfort. Schedule your showing today!

Monthly Payment Calculator



© 2025 Western Upstate Multiple Listing Service, Inc. All rights reserved. This information is deemed reliable, but not guaranteed. Neither the Western Upstate Association of REALTORS®, Inc. or Western Upstate Multiple Listing Service of South Carolina, Inc., nor the listing broker, nor their agents or subagents are responsible for the accuracy of this information. The buyer is responsible for verifying all information. This information is provided by the Western Upstate Association of REALTORS®, Inc. and Western Upstate Multiple Listing Service of South Carolina, Inc. for use by its members and is not intended for the use for any other purpose. The data relating to real estate for sale on this Web site comes in part from the Broker Reciprocity Program of the Western Upstate Association of REALTORS®, Inc. and the Western Upstate Multiple Listing Service, Inc. Data last updated: 2025-11-06T23:35:54.18.
www.robbybrady.com/homes/166743580
Print Image

5830 Liberty Highway Pendleton, SC 29670

  • Price: $795,000
  • Status: Active
  • On Site: 90 Days
  • ID#: 20291012
4
Beds
3
Baths
0
½ Baths
1.98
Acres
2025
Built
Neighborhood:
102-Anderson County,Sc
County:
Anderson
Area:
102-Anderson County,Sc
Elementary School:
Mount Lebanon
Middle School:
Riverside Middl
High School:
Pendleton High
Property Description
The previous buyers loss is your gain! Home had been under a contingency contract. The previous buyers have not been able to satisfy that contingency. This is great news for you! This home is complete accept for a few finishing touches. Looking for a home that blends modern farmhouse charm with timeless elegance, all set on just under 2 acres? Look no more! Construction is under way on this stunning 4-bedroom, 3-bath barndominium-style home offers nearly 2,800 sq. ft. of beautifully designed living space across two stories, packed with high-end finishes and thoughtful upgrades throughout. The first floor showcases 8' interior doors, solid wood and glass double front doors, a striking custom wood-and-black metal staircase, and an open-concept layout with luxury laminate flooring, quartz countertops, a gas log fireplace, and soaring ceilings. Here you'll find the chef's kitchen, living room, owner's suite, mudroom, laundry room, an additional bedroom, and a full bath. The kitchen is a culinary dream, featuring a 36" stainless steel dual-fuel range, farmhouse sink, stainless refrigerator, dishwasher, and microwave. Built for both comfort and efficiency, this home includes tankless gas hot water, open-cell foam insulation (even in the garage/workshop), and three separate HVAC systemsone for each floor plus one for the garage. A whole-house generator adds peace of mind. One of the property's most impressive features is the 1,150+ sq. ft. heated and cooled garage/workshopideal for hobbyists, business owners, or additional storage. Outside, the home is equally impressive with a stone foundation, cement board siding on the house, metal siding on the garage, and a durable metal roof. This one-of-a-kind property offers the perfect balance of rustic style and modern comfort. Schedule your showing today!
Exterior Features

Architectural Style Barndominium Attached Garage YN Yes Construction Materials Cement Siding Stone Exterior Features Sprinkler / Irrigation Porch Foundation Details Crawlspace Levels Two Parking Features Attached Garage Driveway Garage Door Opener Patio And Porch Features Front Porch Porch Roof Metal Waterfront YN No Window Features Insulated Windows Tilt- In Windows Vinyl

Interior Features

Appliances Gas Cooktop Gas Oven Gas Range Gas Water Heater Microwave Range Refrigerator Tankless Water Heater Plumbed For Ice Maker Basement None Crawl Space Basement YN No Building Area Total 2782 Cooling Central Air Electric Cooling YN Yes Fireplace Features Gas Gas Log Option Fireplace YN Yes Flooring Luxury Vinyl Luxury Vinyl Plank Luxury Vinyl Tile Heating Central Electric Natural Gas Heating YN Yes Interior Features Ceiling Fan(s) Cathedral Ceiling(s) Dual Sinks Fireplace High Ceilings Bath in Primary Bedroom Main Level Primary Quartz Counters Smooth Ceilings Shower Only Walk- In Closet(s) Walk- In Shower Loft Laundry Features Washer Hookup Electric Dryer Hookup Main Level Bathrooms 2 Main Level Bedrooms 2 Room Type Laundry Loft Living Room Rooms Total 12

Property Features

Accessibility Features Low Threshold Shower Association YN No Garage YN Yes Horse YN No Lease Considered YN No Lot Features Level Not In Subdivision Outside City Limits Property Condition Under Construction Property Sub Type Single Family Residence Property Sub Type Additional Single Family Residence Sewer Septic Tank Tax Annual Amount 4745.7 Tax Lot A-3 Tax Year 2024 Utilities Electricity Available Natural Gas Available Septic Available Water Available Water Source Public Year Built Details Under Construction

Listing information © 2025 Western Upstate Multiple Listing Service, Inc.
Listing provided courtesy of Rita Garner of Western Upstate Keller William: (864) 225-8006.



© 2025 Western Upstate Multiple Listing Service, Inc. All rights reserved. This information is deemed reliable, but not guaranteed. Neither the Western Upstate Association of REALTORS®, Inc. or Western Upstate Multiple Listing Service of South Carolina, Inc., nor the listing broker, nor their agents or subagents are responsible for the accuracy of this information. The buyer is responsible for verifying all information. This information is provided by the Western Upstate Association of REALTORS®, Inc. and Western Upstate Multiple Listing Service of South Carolina, Inc. for use by its members and is not intended for the use for any other purpose. The data relating to real estate for sale on this Web site comes in part from the Broker Reciprocity Program of the Western Upstate Association of REALTORS®, Inc. and the Western Upstate Multiple Listing Service, Inc. Data last updated: 2025-11-06T23:35:54.18.
 
https://bt-photos.global.ssl.fastly.net/anderson/orig_boomver_1_20291012-2.jpg https://bt-photos.global.ssl.fastly.net/anderson/orig_boomver_1_20291012-2.jpg https://bt-photos.global.ssl.fastly.net/anderson/orig_boomver_1_20291012-2.jpg
Logo
The Robby Brady Team, Howard Hanna Allen Tate
516 Arlington Avenue
Greenville SC, 29601